Комплект поставки
Подземная емкость D 2000 литров Polimer Group – изделие полной заводской готовности, поставляется полностью укомплектованной. В комплект поставки входят:
- Емкость из полиэтилена в сборе -1 шт.
- Крышка – 1 шт.
- Горловина – 1 шт.
- Технический паспорт и руководство по эксплуатации емкости – 1 шт.
Для размещения изделия на большую глубину возможна доукомплектация необходимым количеством горловин.
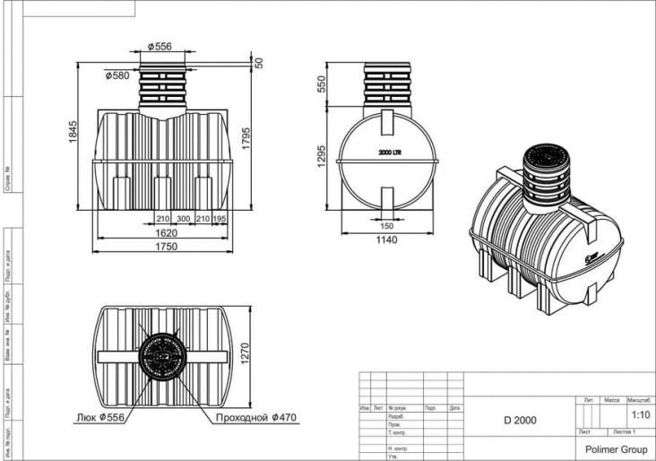
Описание
Емкость D 2000 литров (2 м3) от компании Polimer Group представляет собой цельный цилиндрический резервуар размерами 1.8х1.3х1.9. Емкость предназначена для подземной установки. Она имеет специальные опорные ножки, благодаря которым обеспечивается особая устойчивость и облегчается процесс монтажа.
Корпус изделия выполнен из прочного пластика - полиэтилена. Полиэтилен не горюч, не изменяет физических, химических и вкусовых свойств хранящихся жидкостей. Конструкция рассчитана на неравномерное поступление жидкости.
Подземная емкость D 2000 литров используется для накопления, распределения и хранения различных типов жидкостей и сред (питьевых и технических жидкостей, жидких растворов химических соединений, бытовых, ливневых и производственных сточных вод и т.д.), с учетом свойств материала изготовления. Температура жидкости, находящейся в емкости, не должна превышать 60 °С. Температура эксплуатации емкости должны быть в пределах от -30°С до +60°С.
Преимущества
- Легкость транспортировки и монтажа благодаря небольшому весу конструкции.
- Подходит для хранения многих типов жидкостей и сред.
- Высокая степень жесткости конструкции – емкости не деформируются от давления грунта либо внешнего воздействия.
- Материал корпуса – полиэтилен – абсолютно экологичен и не вредит окружающей среде.
- Подземная емкость D 2000 литров не подвержена коррозии и устойчива к другим неблагоприятным факторам внешней среды.
- Низкая теплопроводность полиэтилена позволяет обойтись без использования дополнительной теплоизоляции.
- Емкость D 2000 из полиэтилена производится по методу ротационного формования, поэтому она имеет цельную, бесшовную структуру и абсолютно герметична.
- Полиэтилен – очень надежный материал, и при следовании правилам установки и эксплуатации, срок службы такой емкости составит не менее 50 лет.
Монтаж
Котлован для емкости необходимо располагать на расстоянии не менее 5 метров от дороги и не менее 3 метров от деревьев.
Глубина, на которой будет установлена емкость, может быть основана на глубине подводящего трубопровода, глубине промерзания грунта или определена проектом. Если уровень грунтовых вод расположен выше, чем отметка низа емкости, то необходимо закрепление, которое производится пластмассовым или капроновым канатом к бетонной плите. В общем случае корпус устанавливается на уплотнённый грунт дна котлована.
Обратная засыпка пазух между стенками котлована и стенками емкости производится не вынутым грунтом, а песком без крупных твердых включений, смешанным с цементом (в пропорции 5:1), с одновременным постепенным заполнением накопителя водой. Песок укладывается послойно с обязательным утрамбовыванием.
Верхний слой засыпается растительным грунтом.
